menu icon search icon

Instruction to Sell
Judges Close, Hereford
£575,000

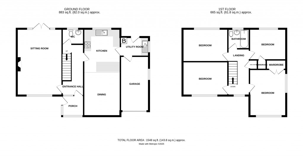
Floorplans For Judges Close, Hereford
EPC For Judges Close, Hereford

DESCRIPTION


A very well maintained 4 bedroom detached property set in an elevated corner plot, comprises; lounge, kitchen/dining room, downstairs WC, utility room, 4 good size bedrooms, family bathroom, gas central heating, double glazing, well maintained gardens, off road parking and garage. 

Situated in a very sought after, quiet residential area, and within walking distance of the City centre, Hospitals, train station, supermarkets, colleges, and schools makes this property a true gem for versatility for an incoming purchaser. 

A FULL VIRTUAL TOUR IS AVAILABLE VIA OUR WEBSITE AND OUR YOUTUBE CHANNEL

OVERVIEW

A very well maintained 4 bedroom detached property set in an elevated corner plot, comprises; lounge, kitchen/dining room, downstairs WC, utility room, 4 good size bedrooms, family bathroom, gas central heating, double glazing, well maintained gardens, off road parking and garage.
Situated in a very sought after, quiet residential area, and within walking distance of the City centre, Hospitals, train station, supermarkets, colleges, and schools makes this property exceptional for versatility for an incoming purchaser.

In more detail the property comprises:

Double glazed door leads to:

Porch

1.85m x 2.0m (6' 1" x 6' 7")
With tiled floor, ceiling light point, double glazed window to the front, double glazed door and window to the side elevation.
Single glazed internal door leads to:

Entrance Hall

With single glazed panel window to the side, 2 ceiling light points, carpet flooring, radiator, large under stairs storage cupboard, light and ideal space for hanging coats.
Glazed oak door leads to:

Lounge

4.0m x 6.0m (13' 1" x 19' 8")
This is the full length of the property and comprises, carpet flooring, ceiling light point, double glazed window to the front elevation, double glazed windows to the rear elevation either side of the double glazed french doors opening out onto the rear garden, 2 TV points, telephone point, ethernet point, 2 radiators, and ample power points.

Downstairs WC

Being fully tiled, double glazed obscured glass window to the rear elevation, chrome towel radiator, wash hand basin with hot and cold tap over, low level WC, and wall mounted vanity space, storage cupboard and ceiling light point.

Kitchen/Dining Room

3.25m x 7.8m (10' 8" x 25' 7")
Accessed through a oak door and the current vendors have created an open plan design and having spot lights above.
Kitchen Area:
Having tiled flooring, fitted kitchen with soft close wall, base and drawers, Lamona 1.5 bowl stainless steel and chrome mixer tap over, Lamona 4 ring gas burner, Lamona cooker hood, Hisense electric double oven as a base unit, Lamona full size integrated dishwasher, integrated fridge, integrated freezer, power points, TV point, double glazed window to the rear elevation, further roll top working surfaces over the base units, and breakfast bar area between the kitchen and dining area ideal for bar stools and storage underneath.
Dining Area:
With oak engineered flooring, double glazed window to the front elevation, radiator, power points, and ideal for either dining or snug area.

Utiltiy

1.7m x 2.62m (5' 7" x 8' 7")
With tiled floor, ceiling light point, matching soft close units from the kitchen, comprising base units with roll top surface over, space and plumbing for washing machine, single bowl stainless steel sink, with chrome mixer tap over, tower unit which houses the Worcester central heating boiler with storage underneath, double glazed door to the rear elevation, radiator, door to garage, and double glazed window to the side elevation with views across the north of Hereford.
From the entrance hall fitted carpeted stairs leads to:

FIRST FLOOR

Landing

Having large double glazed window to the front elevation overlooking the close, radiator, loft access, ceiling light point, airing cupboard which houses the water tank and has shelving.

Master Bedroom

4.2m x 3.2m (13' 9" x 10' 6")
With carpet flooring, ceiling light point, TV point, telephone point, power points, radiator, double glazed window to the front and side elevation, built-in storage with double doors, hanging rail, carpet flooring, and storage shelving over.

Bedroom 2

2.888m x 4.0m (9' 6" x 13' 1")
With carpet flooring, ceiling light point, built-in wardrobes, radiator, double glazed window to the front elevation and power point.

Bedroom 3

3.888m x 4.0m (12' 9" x 13' 1")
With carpet flooring, ceiling light point, radiator, double glazed window to the rear elevation with far reaching views across Herefordshire countryside, and the large wardrobe which is NOT fitted.

Bedroom 4

3.21m x 2.8m (10' 6" x 9' 2")
With carpet flooring, ceiling light point, radiator, telephone point, power points, built-in wardrobe with hanging rail, and storage shelf, and double glazed window to the rear elevation with far reaching views across Hereford City.

Bathroom

Fully tiled, low level WC, wash hand basin with hot and cold tap over, good sized bath with hot and cold tap over, electric Bristan Glee electric power shower, fan to the ceiling, ceiling light point, shaver point, tall chrome towel radiator, and obscured glass window to the rear elevation.

OUTSIDE

The elevated property, with views across the north and east of the City, is approached over a dropped curb, through an open entrance with a brick wall and hedge boundary, and from here leads onto a brick paved parking area driveway with parking for numerous vehicles. The front has a small lawn area with shrubbery borders, gated access either side of the property and also access to the garage. Gated access either side from the property leads to the rear garden, where there is outdoor water and power. At the one side of the property there is a very large garden tool storage shed, and from here at the rear of the property is a large patio area, space for a rotary line, and the boundary fencing has recently been erected. The rear garden has been re-landscaped, and very well maintained, which now creates 3 tiers, the first area has the patio entertaining space with feature lighting, and from here a stone wall with steps up onto a good size lawn space, with shrubs, flowers and ornamental walling at the edges. From here 3 steps leads to the top tier, which gives far reaching views across the city and beyond, but still keeping its privacy. A small summer house with French doors, which is timber constructed on a timber pad, which is just an ideal spot to enjoy the garden and from here is predominantly laid to lawn, dispersed with flowers, shrubs and with hedges to the rear.

Garage

2.7m x 4.9m (8' 10" x 16' 1")
With up and over door to the front and double glazed obscured glass window to the side elevation, ample power points, mains gas and mains electricity, and mains consumer unit.

Hereford

For further details on this property please give our Hereford Office a call
01432 343 477

more details buttonARRANGE A VIEWING

Book a viewing or enquire about this property

Simply fill out the form below or alternatively call us on 01432 343 477

* Mandatory fields