menu icon search icon

Instruction to Sell
Lower Eggleton, Ledbury, Herefordshire
£525,000

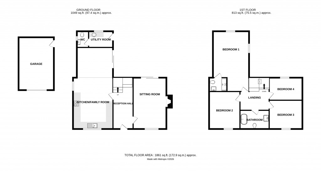
Floorplans For Lower Eggleton, Ledbury, Herefordshire
EPC For Lower Eggleton, Ledbury, Herefordshire

DESCRIPTION


Set within easy access to both Ledbury and Hereford an immaculately presented detached modern house offering large kitchen/dining/family room, four double bedrooms, two bathrooms, large lawned garden with views over surrounding farmland, larger than average garage and off road parking for numerous vehicles. 

The property is situated in the hamlet of Lower Eggleton which offers a shop and petrol station. The market town of Ledbury is approximately 8 miles away which offers a wider range of amenities to include community hospital, primary and secondary school, mainline railway station and regular bus service. The city of Hereford can also be found approximately 10 miles away having a more comprehensive range of amenities.

The M5/M50 motorway network can be found some four miles to the south of Ledbury bringing The Midlands and South West into commuting distance.

Bramley House

Situation and Description

The property is situated within easy access for both Ledbury and Hereford. The property offers beautifully presented accommodation throughout to include Lounge, large Kitchen/Dining/Family Room, Utility Room, Master Bedroom with En-Suite Three further Double Bedrooms, Family Bathroom, Larger than average garage, large garden with open views. The property also benefits from solar panels which are fully owned.

In more details the accommodation comprises:

Ground Floor

Spacious Reception Hall

ceramic tiled floor, radiator, power points, door to Large Understairs Storage Cupboard. Oak door to:

Lounge

17' 5" x 11' 8" (5.3m x 3.55m) with window to front and sliding patio doors to rear opening onto the patio area, feature Inglenook fireplace with fitted wood burning stove and Oak mantle over, Oak flooring, power points, T.V point.

Kitchen/Dining/Family Room

27' 11" x 14' 2" (8.52m x 4.33m) with window to front and side, beautifully fitted with a modern range of units comprising, ceramic 1 1/2 bowl sink with drainer and mixer tap over, ample cupboards and drawers under, integrated dishwasher and fridge/freezer, built-in four burning Neff hob with stainless steel extractor hood over, built-in double oven, ceramic tiled floor, power points, large pantry style cupboard, ceiling downlighters, wall lights, patio doors to side opening onto the garden. Door to:

Utility Room

8'7" x 5' 9" (2.62m x 1.74m) with window to rear and door to side, matching range of units to the kitchen, built-in circular stainless steel sink with drainer cupboards under, space for washing machine, wall mounted gas central heating boiler. Door to:

Cloakroom

with window to window to side, white suite comprising low flush w.c., vanity style wash basin, ceramic tiled floor, extractor fan, power points.

First Floor

Spacious Landing

with panelling to dado height, access to roof space, Skylight proving additional light. Doors to:

Master Bedroom

24' 2" x 12' 8" (7.36m x 3.87m) with duel windows to pleasant outlook to rear rear over open farmland, radiator, power points, Door to:

Large En-Suite

8' 4 " x 4' 11" (2.54m x 1.49m) with window to side, London tiled brick surround, large walk-in shower with dual raindrop shower head, glazed screen to side, vanity wash hand basin, low flush w.c., period radiator/towel rail., extractor fan.

Bedroom Two

12' 2" x 10' 11" (3.72m x 3.32m) window with front outlook, radiator, power points.

Bedroom Three

11' 8 " x 9' 0" (3.55m x 2.74m) window with front outlook, radiator, power points, built-in double wardobes.

Bedroom Four

11' 8" x 8' 0" (3.55m x 2.43m) with window to rear, radiator, power points.

Family Bathroom

8' 1" x 5' 8" (2.46m x 1.72m) with feature clawed freestanding roll top bath with raindrop shower over, low flush w.c., vanity wash hand basin, London brick surround, period radiator/towel rail.

Outside

Approach

The property is approached via a gravelled shared driveway, leading to double five bar gates opening onto the private driveway with parking for numerous cars, leading to the Garage.

To the front of the property is an area of lawn with laurel hedging and gravelled pathway giving access to front door.

Garage

18' 8" x 12' 6" (5.69m x 3.81m) larger than average with electronic up and over door, power and light connected, pedestrian door opening onto the garden.

Garden

The rear garden can be accessed from either side of the property and comprises a paved patio seating area with Laurel hedging, adjacent is a large lawned garden bound by timber slatted fencing and interspersed ornamental trees, a further patio area with gravelled surround and raised beds.

ledbury

For further details on this property please give our Ledbury Office a call
01531 631 177

more details buttonARRANGE A VIEWING

Book a viewing or enquire about this property

Simply fill out the form below or alternatively call us on 01432 343 477

* Mandatory fields