menu icon search icon

Under Offer
Burghill, HEREFORD
£375,000

Floorplans For Burghill, HEREFORD
EPC For Burghill, HEREFORD

DESCRIPTION


This semi-detached four bedroom property benefits from outstanding, elevated countryside views, as well as, a lounge, open plan kitchen/diner, downstairs bathroom, utility room, shower room, four bedrooms, front and rear garden space, and off road parking for approx. three+ vehicles.

Situated in the popular village of Burghill which offers a variety of local amenities to include golf course with restaurant and bar, local village hall with various social activities providing activities for both young and older generations, a rural bus service to and from Hereford city and a shared local shop with the neighbouring village of Tillington providing everyday essentials. The village is located approximately 4 miles North West of Hereford city centre.

A FULL VIRTUAL TOUR IS AVAILABLE ON OUR WEBSITE AND ON OUR YOUTUBE CHANNEL

OVERVIEW

This semi-detached four bedroom property benefits from outstanding, elevated countryside views, as well as, a lounge, open plan kitchen/diner, downstairs bathroom, utility room, shower room, four bedrooms, front and rear garden space, and off road parking for approx. three+ vehicles. Situated in the popular village of Burghill which offers a variety of local amenities to include golf course with restaurant and bar, local village hall with various social activities providing activities for both young and older generations, a rural bus service to and from Hereford city and a shared local shop with the neighbouring village of Tillington providing everyday essentials. The village is located approximately 4 miles North West of Hereford city centre.

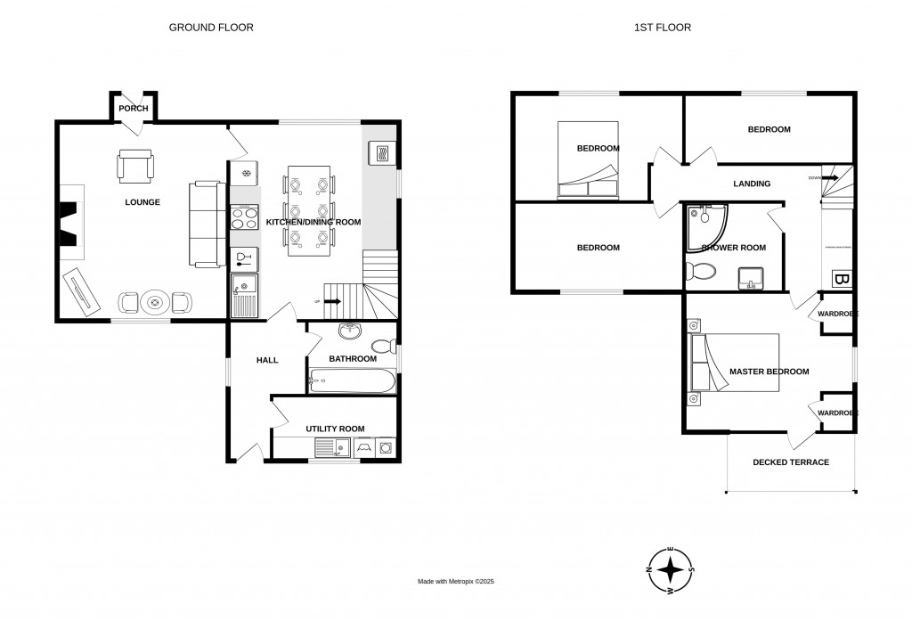
GROUND FLOOR

ENTRANCE PORCH

The entrance porch comprises of: a pitched roof; exposed brick work, tiled flooring, and a double door leading to the lounge.

LOUNGE

4.9m x 4m (16' 1" x 13' 1") - MAXIMUM MEASUREMENT
The lounge comprises of: laminate flooring; dado rails; a ceiling light point; power points; a television point; a door leading to the open plan kitchen/diner; a central heating radiator, and a double glazed window to the rear elevation, and a stone fireplace with an open fire, within a chimney breast.

OPEN PLAN KITCHEN/DINER

4.9m x 4m (16' 1" x 13' 1")
The open plan kitchen/diner comprises of: tiled flooring; two ceiling light points; a double glazed window to the front elevation; a double glazed window to the side elevation; roll top work surfaces over fitted base units; fitted wall units; a chest height Zanussi electric oven; a built-in Baumatic microwave oven; a Baumatic four-ring gas hob; a cooker hood; a stainless steel sink and drainer, with one bowl and mixer tap over; a full size Hotpoint dishwasher; space for a fridge-freezer; a central heating radiator, and a doorway to an inner hall.

INNER HALL

The inner hall comprises of: tiled flooring; a double glazed door to the rear elevation, leading to the rear garden; a double glazed window to the side elevation with obscure glass; a central heating radiator, a door leading to the utility room, and a door leading to the downstairs W/C.

DOWNSTAIRS BATHROOM

The downstairs W/C comprises of: tiled flooring; a chrome towel radiator; a wash hand basin with chrome hot and cold taps over; splash tiling; a double glazed window to the side elevation; a low level W/C with low level flush; a bath with hot and cold chrome taps over; a wall-mounted electric extractor fan, and a ceiling light point.

UTILITY ROOM

The utility room comprises of: tiled flooring; a central heating radiator; a stainless steel sink and drainer with one bowl and a mixer tap over; space and plumbing for a washing machine; space for an additional appliance, e.g., tumble dryer; roll top work surfaces over fitted base units; fitted wall units; a wall-mounted electric extractor fan, and a ceiling light point.

FIRST FLOOR

FIRST FLOOR LANDING

The first floor landing comprises of: access via a U-shaped staircase with fitted carpet; two ceiling points; loft access; an open storage area, housing the wall-mounted gas-fired Worcester combi boiler, and power points.

MASTER BEDROOM

3.65m x 4.3m (12' 0" x 14' 1")
The master bedroom comprises of: carpet flooring; a ceiling light point with ceiling fan; a central heating radiator; a double glazed window to the side elevation; a double glazed door to the rear elevation, leading to a timber-constructed decked terrace; power points; a television point, and built-in storage with hanging rails and shelving.

BEDROOM TWO

4m x 2.7m (13' 1" x 8' 10") - MAXIMUM MEASUREMENT
Bedroom two comprises of: a ceiling light point; a ceiling fan point; carpet flooring; a double glazed window to the front elevation; power points; a central heating radiator, and overhead storage.

BEDROOM THREE

4m x 2m (13' 1" x 6' 7") - MAXIMUM MEASUREMENT
Bedroom three comprises of: carpet flooring; a ceiling light point; overhead storage; a central heating radiator; power points, and a double glazed window to the rear elevation.

BEDROOM FOUR

2m x 4m (6' 7" x 13' 1") - MAXIMUM MEASUREMENT
Bedroom four comprises of: carpet flooring; a ceiling light point; a double glazed window to the front elevation; a central heating radiator; power points, and a television point.

SHOWER ROOM

The shower room comprises of: entry via folding door; tiled flooring; a ceiling light point; a ceiling extractor fan; a low level W/C; a chrome towel radiator; a wash hand basin with chrome mixer tap over; a wall-mounted mirror; vanity space; and, a free-standing shower unit with, LED lighting, bluetooth speakers, jets, a seat, and glass sliding doors.

OUTSIDE

FRONT APPROACH

The front approach comprises of: steps leading to the front porch; brick walls; lawn and hedging to the front; laid stone; fencing maintaining the boundary; a concrete path wrapping around the property; a tarmac driveway with space for three+ vehicles; and, a gated entrance and fencing leading to the rear garden to side of the property, adjacent to some farming land.

REAR GARDEN

The rear garden comprises of: gated access from the front approach; a patio entertaining space; outdoor power and lighting; fencing surrounding the boundary; steps leading to a central pond with a water feature; a laid lawn; space for a rotary line; a timber-constructed storage shed; some laid stone; and, a recently laid indian sandstone patio seating area, overlooking the surrounding countryside views.

Hereford

For further details on this property please give our Hereford Office a call
01432 343 477

more details buttonARRANGE A VIEWING

Book a viewing or enquire about this property

Simply fill out the form below or alternatively call us on 01432 343 477

* Mandatory fields