menu icon search icon

Instruction to Sell
Apple Grove, Hereford
£435,000

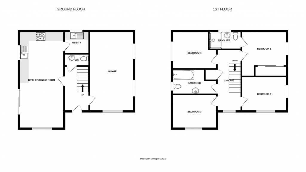
Floorplans For Apple Grove, Hereford
EPC For Apple Grove, Hereford

DESCRIPTION


A beautifully maintained 4 bedroom detached property comprising; entrance hall, cloakroom, lounge, open plan kitchen/dining/snug, utility, 4 good size bedrooms, en-suite, family bathroom, single garage with solar panels, garden and off road parking for 3 plus vehicles. 

Tucked away in the popular residential area of Whitecross, and built by the Developer Redrow around 2017, this quiet and attractive development is particularly popular with professionals and young families seeking a peaceful setting with convenient access to Hereford city centre and its wide range of amenities. Nearby are excellent local amenities to include local shop, post office, church, public house and primary & secondary schooling, whilst more extensive amenities can be found in the city centre, within walking distance and with regular bus services.

A FULL VIRTUAL TOUR IS AVAILABLE VIA OUR WEBSITE AND ON OUR YOUTUBE CHANNEL

OVERVIEW

A beautifully maintained 4 bedroom detached property comprising; entrance hall, cloakroom, lounge, open plan kitchen/dining/snug, utility, 4 good size bedrooms, en-suite, family bathroom, single garage with solar panels, garden and off road parking for 3 plus vehicles.
Tucked away in the popular residential area of Whitecross, and built by the Developer Redrow, around 2017, this quiet and attractive development is particularly popular with professionals and young families seeking a peaceful setting with convenient access to Hereford city centre and its wide range of amenities. Nearby are excellent local amenities to include local shop, post office, church, public house and primary & secondary schooling, whilst more extensive amenities can be found in the city centre, within walking distance and with regular bus services.

In more detail the property comprises:

Double glazed door at the front elevation leads to:

Entrance Hall

Having tiled floor, ceiling light point, radiator, and under stairs storage cupboard.
Door to:

Lounge

6.38m x 3.56m (20' 11" x 11' 8")
This room spans the full length of the property and has dual aspect, three double glazed windows to the side and front elevation, 2 radiators, carpet flooring, 2 ceiling light points, TV/telephone point, and ample power points.
From the entrance hall a door leads to:

Cloakroom

1.99m x 0.97m (6' 6" x 3' 2")
With tiled floor, spot lights, ceiling extractor point, low level WC, wash hand basin with chrome mixer tap over, radiator, and wall mounted mirror.

Open Plan Kitchen/Dining/Snug

7.73m x 3.57m (25' 4" x 11' 9") This room is the full length of the property and comprises;
Snug Area:
Having spot lights, tiled flooring continued from the entrance hall, double glazed window to the front elevation, double glazed window panels either side of double glazed sliding doors to the side elevation which leads out onto a decked area at side garden, radiator, TV point, power points, and tiled flooring which continues though to:
Kitchen/Dining Area:
Having spot lights, tiled flooring, radiator, a fitted kitchen with wall, base and drawers, integrated appliances to include; fridge/freezer, AEG electric chest height double oven, 4 ring AEG induction hob, AEG cooker hood over, AEG dishwasher, 1.5 stainless sink and drainer with mixer tap over, roll top working surfaces over the fitted units, pantry/larder with doors and drawers, and double glazed window to the side elevation.

Utility Room

1.99m x 1.79m (6' 6" x 5' 10")
With tiled flooring, radiator, roll top working surfaces, space and plumbing for washing machine, space for tumble dryer, wall mounted Ideal Logic central heating boiler, wall mounted extractor fan point, and double glazed obscured glass window to the side elevation.

From the reception hall a carpeted stairs leads to:

FIRST FLOOR

Landing

With 2 ceiling light points, carpet flooring, loft access above, radiator, door to airing cupboard housing the hot water pressure cylinder and shelving, and double glazed window to the side elevation.

Bedroom 1

3.74m x 3.62m (12' 3" x 11' 11")
A good size double room with fitted storage comprising 3 sliding mirror doors, hanging rail and storage, double glazed window to the side elevation, radiator, and TV/telephone point.
Door to:

En-Suite

2.58m x 1.35m (8' 6" x 4' 5")
With tiled flooring, low level WC, wash hand basin with chrome mixer tap over and tiled splashback, obscured glass double glazed window to the side elevation, shaver point, chrome towel radiator, glass sliding door into a fully tiled shower cubicle with mains shower unit, spots lights and extractor fan.

Bedroom 2

3.35m x 3.05m (11' 0" x 10' 0")
With carpet flooring, ceiling light point, TV/telephone points, double glazed window to the side elevation, and ample power points.

Bedroom 3

3.62m x 2.55m (11' 11" x 8' 4")
with ceiling light point, double glazed window to the front elevation, radiator, power points and TV point.

Bedroom 4

3.01m x 2.45m (9' 11" x 8' 0")
With carpet flooring, ceiling light point, dual aspect double glazed windows to both the side and front elevations, radiator, TV and power points, mirror sliding door to built-in wardrobe space with hanging rail and shelving.

Family Bathroom

2.26m x 2.05m (7' 5" x 6' 9")
With tiled flooring, spot lights, ceiling extractor, chrome towel radiator, shaver point, wash hand basin with mixer tap over, wall mounted mirror, low level WC, double glazed obscured glass to the side elevation, bath with chrome mixer tap over and mains shower over and glass swivel screen.

OUTSIDE

Adjacent to Apple Grove is a play park and from here a drop curb leads to the property with a tarmacadamed driveway which is suitable for 3 or more vehicles and in turn leads to a single garage. A laid stone pathway and a small lawn are at the front of the property with a hedge boundary next to the children's park. At the side there is a timber gate accessing a lawned garden wrapping around the property where there is a decking area ideal for entertaining and beyond here there is feature lawned area with brick paving surround, low maintenance bark bed, dispersed sleepers creating flower beds with flowers, shrubs, trees and fencing to the rear and the side, where the garden backs onto a pedestrian pathway which follows the Yazer brook. The property has a timber constructed shed.

Single Garage

Having up and over door, concrete flooring, power, light and a pitched roof above which holds solar panels and battery storage.

Hereford

For further details on this property please give our Hereford Office a call
01432 343 477

more details buttonARRANGE A VIEWING

Book a viewing or enquire about this property

Simply fill out the form below or alternatively call us on 01432 343 477

* Mandatory fields