menu icon search icon

Under Offer
Salisbury Avenue, Hereford
£575,000

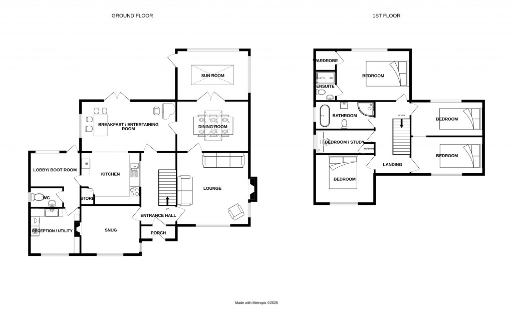
Floorplans For Salisbury Avenue, Hereford
EPC For Salisbury Avenue, Hereford

DESCRIPTION


Being offered for sale with No Onward Chain, a very well presented, 4/5 bedroom extended, converted, detached, property. Comprising oak internal doors, entrance porch, hall, snug, lounge, dining room, summer room, kitchen/dining room, boot room, cloakroom, utility, 5 bedrooms (one could convert to a study) en-suite, family bathroom, gardens front and rear, and ample parking for at least 5 vehicles. 

Close to the property is a host of amenities which makes it conveniently located. Local amenities include various shops, public house, bus service, doctor's surgery, primary and secondary schools and the property is well placed for access to Hereford's further education colleges (Sixth Form Art & Technical)

A FULL VIRTUAL TOUR IS AVAILABLE VIA OUR WEBSITE AND ON OUR YOUTUBE CHANNEL

OVERVIEW

Situated in a very popular residential area northeast of Hereford City, and being offered for sale with No Onward Chain, a 4/5 bedroom detached, extended and converted, property being very well presented inside and out. Comprising oak internal doors, entrance porch, entrance hall, snug, lounge, dining room, summer room, kitchen/dining room, boot room, cloakroom, utility, 5 bedrooms (one could convert to a study) en-suite, family bathroom, gardens front and rear, and ample parking for at least 5 vehicles.

In more detail the property comprises:
A composite door at the front elevation leads to:

Entrance Porch

2.2m x 0.9m (7' 3" x 2' 11")
With carpet flooring, wall light point, power point, coat hanging space, double glazed window to the side and the front and obscured glass window panel either side of the composite door.
Double glazed door with, double glazed panel windows either side, leads to:

Entrance Hall

A bright area and having laminate flooring, 2 ceiling light points, radiator, under stairs storage cupboard, and an open under stairs storage area.
Glazed oak door leads to:

Snug

4.0m x 3.3m (13' 1" x 10' 10")
With continued laminate flooring, ceiling light point, double glazed window to both the side and front elevation, radiator, TV, power points, and fireplace with oak mantel over with log burning stove.

Lounge

5.2m x 3.65m (17' 1" x 12' 0")
With carpet flooring, ceiling light point, TV and telephone point, gas coal effect fire within a chimney breast with fire surround, double glazed window to the both the front and side elevation, radiator, 2 wall light points and an oak door back to the hall.
Oak door leads to:

Dining Room

2.35m x 3.7m (7' 9" x 12' 2")
With laminate flooring, Velux skylight, spot lights, power points, and double glazed window panels.
Double glazed french doors leads to:

Summer Room

3.42m x 2.8m (11' 3" x 9' 2")
With feature spot lights, laminate flooring, double glazed window to the rear and the side elevation, power points, TV point, radiator, double glazed door to the side elevation opening onto a patio area at the rear of the garden, and large skylight.

Kitchen/Dining Room

3.8m x 4.5m (12' 6" x 14' 9")
With continued laminate flooring from the entrance hall, double glazed window to the side elevation and double glazed french doors opening onto the rear patio and garden, breakfast bar with soft close doors and wooden working surfaces over, and spot lights.
Opening through to:
Kitchen Area;
4.1m x 3.5m (13' 5" x 11' 6")
Having tiled floor, spot lights, opening back through to the entrance hall, fitted kitchen with soft close, wall, drawers and base units, Belfast style 1.5 bowl sink, drainer with waste disposal and mixer tap over, space for fridge freezer, integrated electric double oven, 4 ring electric induction hob, cooker hood over, ample power points, wooden working surfaces, and corner unit opening into a large pantry with multiple shelving and automatic lights.
Door to:

Conversion Area

This area is part of the garage conversion and comprises:
Continued tiled flooring.

Boot Room

2.735m x 2.7m (9' 0" x 8' 10")
With tiled floor, spot lights, double glazed door and double glazed window to the rear elevation, 'services' connected to create a utility area.

Inner Hallway

Having spot light, and tiled flooring.
Oak door to:

Downstairs Cloakroom

With tiled flooring, spot lights, double glazed obscured glass window to the side elevation, part tiled walls, chrome towel rail, corner wash hand basin with chrome mixer tap over and low level WC.
From the inner hall a door leads to:

Utility/Laundry Room

4.2m x 2.6m (13' 9" x 8' 6")
With exposed wooden beams, tiled flooring, large stainless steel sink with feature mixer tap over, soft close base units, wall units, space and plumbing for washing machine, space for tumble dryer, matching storage to the utility cupboards, radiator, spot lights, and double glazed window to the front elevation.

From the entrance hall stairs with fitted carpet, glass panels, wood effect banister leads to:

FIRST FLOOR

Landing

With fitted carpet, large double glazed window to the front elevation giving lots of natural light, continued glass panels with natural wooden banister, loft access and ceiling light point.

Bedroom 1

3.15m x 3.8m (10' 4" x 12' 6")
With carpet flooring, ceiling light point, 2 wall light points, power points, TV point, another oak door leads to walk-in wardrobe, double glazed window to the rear and radiator.
Oak door leads to:

En-suite

With tiled floor, spot lights above, extractor fan, double glazed obscured glass window to the side elevation, wash hand basin with mixer tap over, wall mounted fitted vanity space with mirror, fully tiled good size shower cubicle, mains shower unit and glass screen.

Bedroom 2

4.1m x 3.3m (13' 5" x 10' 10")
With carpet flooring, ceiling light point, double glazed window to the front elevation, radiator, TV and power points.

Bedroom 3

2.9m x 3.7m (9' 6" x 12' 2")
A good size double room comprising, carpet flooring, ceiling light point, double glazed window to the front elevation, power points, and TV point.
Oak door to:

Bedroom 4

2.2m x 3.7m (7' 3" x 12' 2")
Currently accessed from either bedroom 3 or from the landing and comprising; carpet flooring, ceiling light point, radiator, power points and double glazed window to the rear elevation.

Bedroom 5/Study

3.35m x 1.5m (11' 0" x 4' 11")
Having carpet flooring, ceiling light point, radiator, double glazed window to the side elevation, power points and fitted wardrobe with hanging rail and storage shelving.

Family Bathroom

Being of a good size and comprising; tiled flooring, part tiled walls, double glazed obscured glass window to the side elevation, spot lights, extractor point, chrome towel radiator, freestanding roll top bath with chrome mixer tap over and additional shower head, wash hand basin with chrome mixer tap over, wall mounted mirror with fitted shelving, low level WC, separate corner fully tiled shower cubicle with glass sliding doors, and 2 shower heads.

OUTSIDE

The property is approached over a bricked paved driveway providing parking space for 5 vehicles, and having brick walling creating the boundary. The front has a raised ornamental stone wall creating a flowerbed to include shrubbery and trees. There is access either side of the property leading to the rear where there is a large patio seating area directly off the property and from here there is a stone path which leads to another patio area and with a lawned area surrounding. A large storage shed with decking, and a low timber fencing at the rear with a selection of shrubs and trees creating privacy, and all backing onto the playing fields at Bishops School. Outdoor power and lighting and ornamental slated seating area with stone surround and in all a delightful low maintenance.

Hereford

For further details on this property please give our Hereford Office a call
01432 343 477

more details buttonARRANGE A VIEWING

Book a viewing or enquire about this property

Simply fill out the form below or alternatively call us on 01432 343 477

* Mandatory fields