menu icon search icon

Instruction to Sell
Tensing Close, Hereford
£339,950

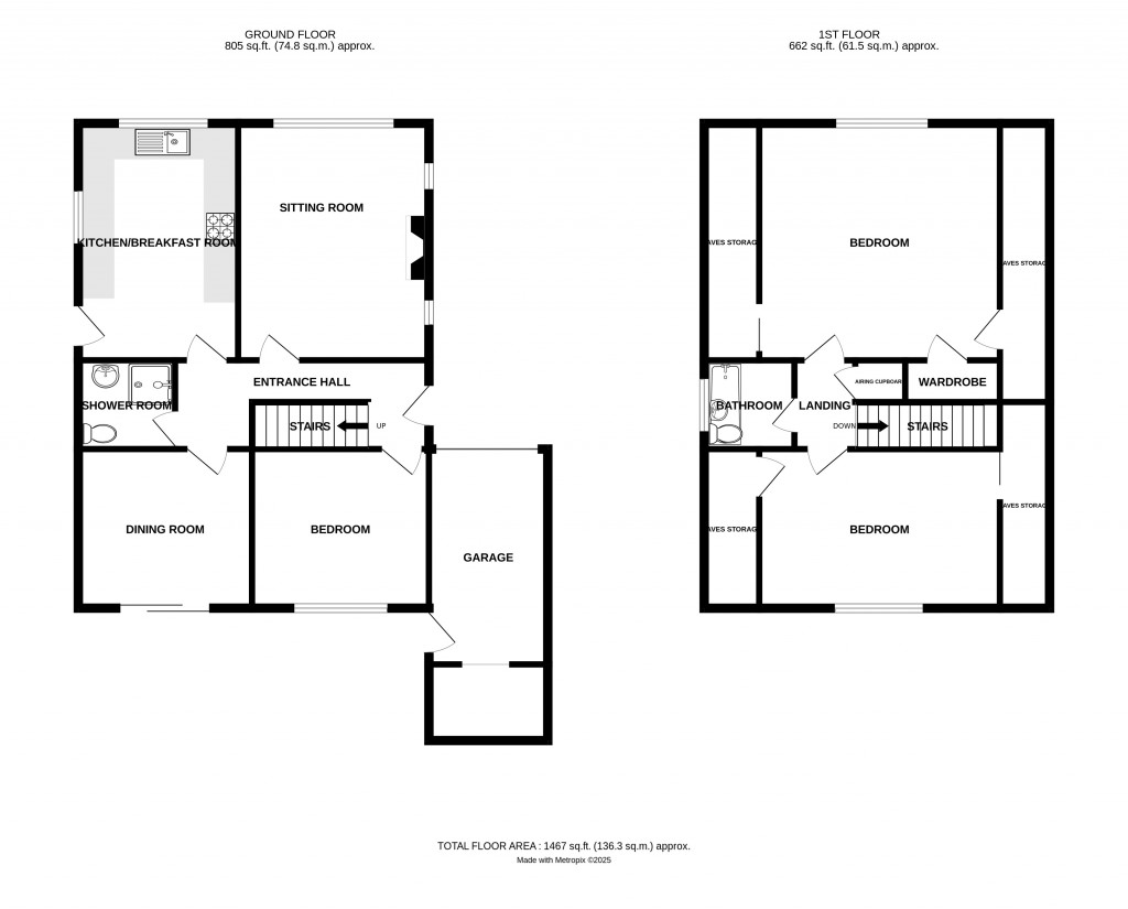
Floorplans For Tensing Close, Hereford
EPC For Tensing Close, Hereford

DESCRIPTION


This dormer style bungalow benefits from a, lounge, kitchen/breakfast room, dining room, downstairs shower room, one downstairs bedroom, two upstairs bedrooms, a bathroom, driveway, garage and, front and rear garden space. This property requires a full cosmetic update, and is being sold with NO onward chain.

Pleasantly located in the Kings Acre area of Hereford, approx. 1.5 miles west of Hereford City, close to a wide arrange of everyday amenities to include, shops, schools, churches, public houses, and an irregular bus service to and from Hereford City. For those that enjoy walks, there are lovely walks available in the area with surrounding footpaths, going up as far as Breinton.

A FULL VIRTUAL TOUR IS AVAILABLE VIA OUR WEBSITE AND ON OUR YOUTUBE CHANNEL

OVERVIEW

This dormer style bungalow benefits from a, lounge, kitchen/breakfast room, dining room, downstairs shower room, one downstairs bedroom, two upstairs bedrooms, a bathroom, driveway, garage and, front and rear garden space. This property requires a full cosmetic update, and is being sold with NO onward chain. Pleasantly located in the Kings Acre area of Hereford, approx. 1.5 miles west of Hereford City, close to a wide arrange of everyday amenities to include, shops, schools, churches, public houses, and an irregular bus service to and from Hereford City. For those that enjoy walks, there are lovely walks available in the area with surrounding footpaths, going up as far as Breinton.

GROUND FLOOR

RECEPTION HALL

The reception hall comprises of: entry via a single glazed door to the side elevation; two ceiling light points; carpet flooring; a central heating radiator, and an understairs storage area.

LOUNGE

3.623m x 4.5m (11' 11" x 14' 9")
The lounge comprises of: carpet flooring; a ceiling light point; a double glazed window to the front elevation; a central heating radiator; a coal effect gas fire; a television point; a telephone point, and two double glazed windows to the side elevation with obscure glass.

KITCHEN/BREAKFAST ROOM

4.5m x 3.25m (14' 9" x 10' 8")
The kitchen/breakfast room comprises of: carpet flooring; two ceiling light points; a central heating radiator; double glazed windows to the front and side elevations; a double glazed door to the side elevation, leading onto a side access; roll top work surfaces over fitted base units; fitted wall units; space and plumbing for a washing machine; space and plumbing for a dishwasher; a stainless steel sink and drainer, with one and a half bowl and mixer tap over; an Indesit gas hob with a cooker hood over; a Hotpoint chest height electric double oven; space for a fridge-freezer, and overhang work surfaces creating space for breakfast bar stools.

DINING ROOM

3.375m x 3m (11' 1" x 9' 10")
The dining room comprises of: carpet flooring; a ceiling light point; a central heating radiator, and double glazed patio sliding doors to the rear elevation, leading to the rear garden.

DOWNSTAIRS SHOWER ROOM

The downstairs shower room comprises of: carpet flooring; a double glazed window to the side elevation with obscure glass; a corner shower cubicle, with glass sliding doors, fully tiled surround, and mains shower unit; a low level WC; a wash hand basin with a chrome mixer tap over; a wall-mounted central heating Worcester combi boiler, and a ceiling light point.

BEDROOM THREE

Bedroom three comprises of: carpet flooring; a ceiling light point; a double glazed window to the rear elevation, and power points.

FIRST FLOOR

FIRST FLOOR LANDING

The landing comprises of: access via a carpeted staircase; a ceiling light point; carpet flooring; thermostat control, and an airing cupboard which houses the electric immersion heater and water tank.

BEDROOM ONE

4.58m x 3.5m (15' 0" x 11' 6")
Bedroom one comprises of: carpet flooring; a ceiling light point; a double glazed window to the front elevation; a central heating radiator; a built-in wardrobe with a hanging rail and shelving; eave storage points; power sockets, and a television point.

BEDROOM TWO

3m x 3.5m (9' 10" x 11' 6")
Bedroom two comprises of: carpet flooring; a ceiling light point; loft access; a central heating radiator; a double glazed window to the rear elevation; a wardrobe space with a sliding door and shelving; eave storage; power sockets, and a television point.

BATHROOM

The bathroom comprises of: carpet flooring; a single glazed window to the side elevation with obscure glass; a low level WC with high level flush; a wash hand basin with hot and cold taps over; splash tiling; a bath with hot and cold taps over and partly tiled surround; a central heating radiator, and a ceiling light point.

OUTSIDE

FRONT APPROACH

The front approach comprises of: a dropped curb allowing access onto a driveway; an under canopy area; an up and over door through the the garage; a small garden; an outdoor tap; lawn and shrubbery; side gated access, and a single glazed door to the side elevation giving access into the property.

GARAGE

7.25m x 2.635m (23' 9" x 8' 8")
The garage comprises of: concrete flooring; power and lighting; a television point; an up and over door to the front elevation; a single glazed window to the side elevation, and a double glazed timber door to the side elevation giving access to the rear garden.

REAR GARDEN

The rear garden comprises of: a patio seating area; a lawn; shrubbery and flower bed surround; hedging; a concrete path separating the garden; a vegetable plot with a greenhouse, and a laid patio.

Hereford

For further details on this property please give our Hereford Office a call
01432 343 477

more details buttonARRANGE A VIEWING

Book a viewing or enquire about this property

Simply fill out the form below or alternatively call us on 01432 343 477

* Mandatory fields