menu icon search icon

Under Offer
Bishopstone, Hereford
£280,000

Floorplans For Bishopstone, Hereford
EPC For Bishopstone, Hereford

DESCRIPTION


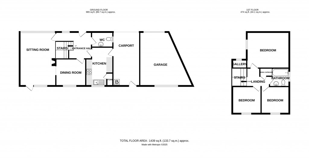
A 3 bedroom detached property which was built in the 1960's, is in need of FULL RENOVATION and is situated in the attractive village hamlet of Bishopstone. Situated in a rural location down a quiet country lane, known as Bichon Lane, this property is surrounded by farmland and beautiful Herefordshire countryside.  The property comprises: entrance hall, lounge, dining room, kitchen,  downstairs WC, 3 bedrooms and bathroom to the first floor, garage, carport, and southeast facing overgrown garden.  There is NO ONWARD CHAIN. 

Although a hidden rural gem, Parkhill is still close to an array of essential amenities. Credenhill is just a short distance away with shops, food outlets and the new addition of the French restaurant l’Ecole des Amis. also nearby in the opposite direction, is Timothy & Birch, the homewares, coffee shop and casual eatery, then a further short distance away is Oakchurch Farm shop with fresh local meat, vegetables, clothing, home goods and a well-stocked garden centre, not forgetting their renowned Ice Cream Shack. Sainsbury’s and Waitrose in Hereford City which is just 5 miles away with an array of eateries and riverside walks, dining and the full city amenities you’d expect.

A FULL VIRTUAL TOUR IS AVAILABLE VIA OUR WEBSITE AND ON OUR YOUTUBE CHANNEL

OVERVIEW

A 3 bedroom detached property which was built in the 1960's, is in need of FULL RENOVATION and is situated in the attractive village hamlet of Bishopstone. Situated in a rural location down a quiet country lane, known as Bishon Lane, this property is surrounded by farmland and beautiful Herefordshire countryside. The property comprises: entrance hall, lounge, dining room, kitchen, downstairs WC, 3 bedrooms and bathroom to the first floor, garage, carport, and southeast facing overgrown garden. There is NO ONWARD CHAIN. Although a hidden rural gem, Parkhill is still close to an array of essential amenities. Credenhill is just a short distance away with shops, food outlets and the new addition of the French restaurant l’Ecole des Amis. In addition, also nearby in the opposite direction, is Timothy & Birch, the homewares, coffee shop and casual eatery, then a further short distance away is Oakchurch Farm shop with fresh local meat, vegetables, clothing, home goods and a well-stocked garden centre, not forgetting their renowned Ice Cream Shack. Supermarkets are in Hereford City which is just 5 miles away with an array of eateries and riverside walks, dining and the full city amenities you’d expect.

In more detail the property comprises:

Double glazed door at the front elevation leads to:

Entrance Hall

Having double glazed side panel to the side of the door, large double glazed floor to ceiling window which brightens up the room at the front elevation, wall light point, understairs storage, radiator, carpet flooring.
Door to:

Lounge

3.65m x 5.75m (12' 0" x 18' 10")
With double glazed window to the front elevation, double glazed window to the rear elevation, double glazed door to the rear of the property, 3 radiators, carpet flooring, electric fire in an exposed brick chimney with pine surround, 3 wall light points, pitch roof with pine cladding giving this property a 60's and 70's retro feel, ample power points, and TV point.

Archway leads through to:

Dining Room

3.1m x 2.6m (10' 2" x 8' 6")
With carpet flooring, ceiling light point, radiator, double glazed window to the rear elevation, serving hatch through to the kitchen, and a door leading back to the entrance hall.

Kitchen

4.15m x 2.7m (13' 7" x 8' 10")
With ceiling light point, lino flooring, double glazed window to the rear elevation, the serving hatch going though to the dining room, fitted kitchen with wall and base units, roll top working surfaces, cooker hood, electric hob and oven, 1.5 sink with drainer , mixer tap over, door to large pantry with storage shelving and lino flooring, space for fridge and freezer, radiator, and door to side elevation which leads out to the carport.

Large Downstairs WC

With tiled floor, ceiling light point, high flush WC, wash hand basin chrome hot and cold tap over, splash tiles over wash hand basin, electrical consumer unit, meter and radiator.

From the entrance hall ,a split exposed wooden staircase, leads to:

FIRST FLOOR

Landing

With carpet flooring ceiling light point, and airing cupboard housing the immersion heater/water tank, power point and storage shelving.

Bedroom 1

3.6m x 4.35m (11' 10" x 14' 3")
With carpet flooring, ceiling light point, 2 radiators, power points, and telephone point, dual aspect double glazed windows to both the front and side aspect with far reaching views towards the west of Herefordshire.

Bedroom 2

2.77m x 3.0m (9' 1" x 9' 10")
With carpet flooring, ceiling light point, power points, radiator, double glazed window to the rear elevation with far reaching views across some beautiful Herefordshire countryside.

Bedroom 3

2.8m x 3.111m (9' 2" x 10' 2")
With carpet flooring, ceiling light point double glazed window to the rear elevation with beautiful countryside views, radiator, and power points.

Bathroom

With lino flooring ceiling light point, double glazed obscured glass window to the side elevation, bath with chrome mixer tap over including a chrome shower attachment with a glass swivel screen, low level WC, wash hand basin with chrome hot and cold tap over, radiator, and wall mounted vanity space with integral mirror.

OUTSIDE

The property is approached, at the front, from Bishon Lane, where there is parking for approximately 4 vehicles, and from here there is fencing to one side and a selection of shrubs to the other. A path leads around the property were there are a further selection of ornamental trees and shrubbery borders surrounding the plot. This garden hasn't been cared for in recent times and therefore needs an incoming purchaser to bring it back to its former glory, if so desired. From here a lawned area sweeps around the property where there are further ornamental trees and shrubbery also needing some loving care as its overgrown, and from here, across the width of the property is a southeast facing patio area also needing some attention. There is a bunded oil tank ready for an incoming purchaser to upgrade the oil fired central heating system, and in all there are some quintessential views from all aspects of this very overgrown garden.

Carport

5.75m x 2.7m (18' 10" x 8' 10")
This can be accessed from the kitchen, and having flat roof, concrete floor, outdoor tap and lighting, space for exposed central heating boiler, single glazed window at the rear elevation and door opening onto the rear garden.

Garage

5.75m x 5.5m (18' 10" x 18' 1")
With up and over door, concrete floor, power, light, single glazed window and having a flat roof.

Hereford

For further details on this property please give our Hereford Office a call
01432 343 477

more details buttonARRANGE A VIEWING

Book a viewing or enquire about this property

Simply fill out the form below or alternatively call us on 01432 343 477

* Mandatory fields