menu icon search icon

Under Offer
Madley, Hereford
£245,000

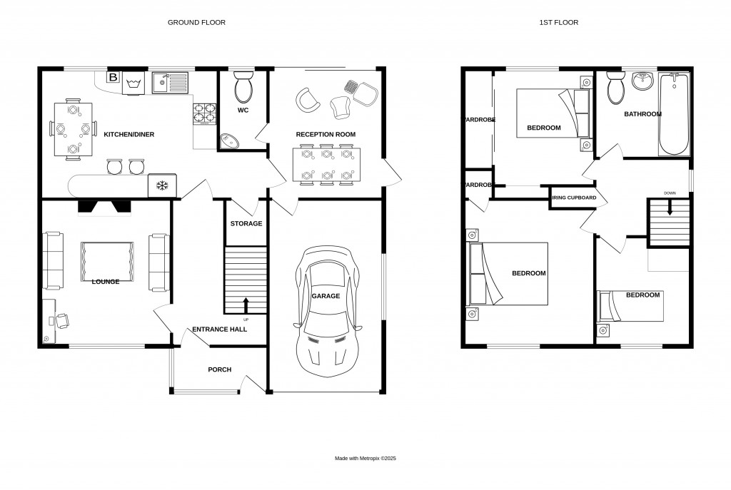
Floorplans For Madley, Hereford
EPC For Madley, Hereford

DESCRIPTION


This semi detached property which benefits from magnificent views across the Herefordshire countryside comprises, gas central heating, double glazing, and having living room, kitchen/dining area, summer room, cloakroom, 3 bedrooms, bathroom, gardens, garage and parking for numerous vehicles.

Situated in the popular village of Madley, southwest of Hereford City, amenities include, local pub, village shop/post office, church, village hall, primary school and in the nearby village of Kingstone there is a secondary school. The area is in the renowned Golden Valley which has excellent walking and hiking facilities and for those who require it there is a bus service to Hereford City and the market town of Hay on Wye.

A FULL VIRTUAL TOUR IS AVAILABLE VIA OUR WEBSITE AND OUR YOUTUBE CHANNEL

OVERVIEW

This semi detached property which benefits from magnificent views across the Herefordshire countryside comprises, gas central heating, double glazing, and having living room, kitchen/dining area, summer room, cloakroom, 3 bedrooms, bathroom, gardens, garage and parking for numerous vehicles.
Situated in the popular village of Madley, southwest of Hereford City, amenities include, local pub, village shop/post office, church, village hall, primary school and in the nearby village of Kingstone there is a secondary school. The area is in the renowned Golden Valley which has excellent walking and hiking facilities and for those who require it there is a bus service to Hereford City and the market town of Hay on Wye.

In more detail the property comprises:

Timber single glazed door at the front elevation leads to:

Entrance Porch

1.0m x 2.42m (3' 3" x 7' 11")
With single glazed timber framed window at the front elevation, laminate flooring, ceiling light point, and single glazed internal window.
Door to:

Entrance Hall

A good size area, with laminate flooring, ceiling light point, radiator, and power points.

Lounge

4.8m x 3.7m (15' 9" x 12' 2")
With continued laminate flooring, double glazed window to the front elevation, ceiling light point with dimmer switch, space for log burning stove within the chimney breast, radiator, TV, telephone point, and power points.

Kitchen/Dining Room

3.25m x 5.8m (10' 8" x 19' 0")
With lino flooring, large under stairs storage cupboard with ceiling light point and this being a southwest facing room with beautiful far reaching views to open countryside.
Kitchen Area:
with soft close wall, base and drawers, double glazed window to the rear elevation, spot lights, electric oven, 4 ring gas hob, cooker hood over, space and plumbing for washing machine, 1.5 bowl stainless steel sink and drainer, chrome mixer tap over, wall unit housing the Ideal Esprit echo boiler, and roll top working surfaces.
Dining Area:
Space for table, power points, TV point, radiator, continued lino flooring, ceiling light point, and double glazed window to the rear elevation.
Door to:

Second Reception/Summer Room

3.6m x 1m (11' 10" x 3' 3")
With lino flooring, ceiling light point with fan, single glazed timber door to the side elevation, power points, large double glazed sliding door to rear elevation and door to the garage.
Door to:

Downstairs Cloakroom

With low level WC, wash hand basin with chrome mixer tap over, ceiling light point, double glazed obscured glass window to the rear elevation, wall mounted electrical consumer unit, and electrical meter.
From the entrance hall a carpeted stairs leads to:

FIRST FLOOR

Landing

With carpet flooring, ceiling light point, double glazed window to the side elevation with far reaching views, a loft hatch, and a good size airing cupboard which houses a radiator, ceiling light point and shelving.

Bedroom 1

4.375m x 3.75m (14' 4" x 12' 4")
With carpet flooring, ceiling light point, radiator, double glazed window to the front elevation with countryside views, power points, TV point and door to built-in wardrobe/cupboard with hanging rail and storage shelf.

Bedroom 2

3.4m x 3.75m (11' 2" x 12' 4")
A west facing room with carpet flooring, ceiling light point, double glazed window to the rear elevation with beautiful countryside views, fitted wardrobes with sliding mirror doors, recess with potential for storage, radiator, and power points.

Bedroom 3

2.66m x 2.66m (8' 9" x 8' 9") including stair bulkhead.
With ceiling light point, power points, radiator, and double glazed window to the front elevation with countryside views,

Bathroom

With lino flooring, ceiling light point, radiator, wash hand basin with hot and cold tap over, wall mounted vanity space including mirror, shelving, low level WC, bath with hot and cold tap over, electric shower unit within the bath, shower curtain rail, and a recently fitted double glazed obscured glass window to the rear elevation.

OUTSIDE

The property is approached over a tarmacadamed driveway, with low maintenance stoned area for additional parking. A low maintenance lawn area, a raised area planted with shrubbery, and from here there is access to both the front entrance and the garage, and the garden has a fence and hedging creating the boundary. At the side there is access around the property with a wooden gate, a concrete path with hedging to the side, leads to the rear of the property where there is a recently laid patio seating area, and a path which separates two lawned areas. There is an outside tap, space for a rotary clothes line, and the rear garden has a recently erected fencing and trellis which separates the entertaining area with the rest of the garden where there is a low maintenance bark area dispersed with flower/shrubbery areas. The boundary is created with both brick walling and fencing and this west facing garden has the most delightful views across some lovely Herefordshire countryside and some lovely sunsets.

Garage

5.65m x 2.65m (18' 6" x 8' 8")
Having an up and over door, a pitch roof, concrete pad, single glazed window to the side elevation, power and lighting.

Hereford

For further details on this property please give our Hereford Office a call
01432 343 477

more details buttonARRANGE A VIEWING

Book a viewing or enquire about this property

Simply fill out the form below or alternatively call us on 01432 343 477

* Mandatory fields