menu icon search icon

Instruction to Sell
Wellington, Hereford
£525,000

Floorplans For Wellington, Hereford

DESCRIPTION


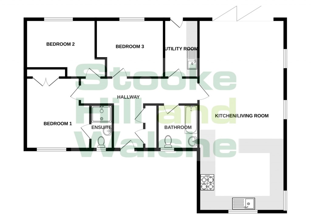
A newly constructed detached contemporary 3 bedroom bungalow, built to a high specification by a private local Developer, in a sought after village location. Measuring  1367sq ft (126.9m2) and comprises; open plan living/dining/kitchen area, utility, under floor heating, gardens, garage, off road parking and quintessential views across west Herefordshire. No onward Chain.

The village of Wellington offers a vast range of amenities to include a public house, community shop, primary school, church, social club, sports facilities adjoining the local primary school (which are available for use by village residents), a short drive away are two very popular golf courses and theres a regular bus service to/from Hereford City from Wellington village itself.

A FULL VIRTUAL TOUR IS AVAILABLE ON OUR WEBSITE AND ON OUR YOUTUBE CHANNEL

OVERVIEW

A newly constructed detached contemporary 3 bedroom bungalow, built to a high specification by a private local Developer, in a sought after village location. Measuring 1376sq ft (126.9 m2) and comprises; open plan living/dining/kitchen area, utility, under floor heating, gardens, garage, off road parking and quintessential views across west Herefordshire.
The village of Wellington offers a vast range of amenities to include a public house, community shop, primary school, church, social club, sports facilities adjoining the local primary school (which are available for use by village residents), a short drive away are two very popular golf courses and theres a regular bus service to/from Hereford City from Wellington village itself.
No onward Chain.
In more detail the property comprises:
Double glazed door at the front elevation leads to:

Entrance Hall

With spot lights, 2 oak doors to built-in storage, power points, underfloor heating, and thermostat controls.

Open Plan Living/Dining/Kitchen

11.1m x 4.5m (36' 5" x 14' 9")
Kitchen Area:
Having dual aspect double glazed windows to the side and front elevation, grey gloss new kitchen with ample storage, comprising; soft close drawers, doors, working surfaces over the base units, electric chest height Bosch double oven, Indesit electric induction hob and Indesit cooker hood over, pull out bin store, Bosch dishwasher, Caple 1.5 bowl stainless steel sink and drainer, chrome mixer tap over, under floor heating, breakfast bar area incorporated into the kitchen units, and spot lights over kitchen area.
Large Lounge/Dining Area:
Having ample power points, 2 down lighters, and 2 double glazed windows to the side elevation and a triple bi-fold door to the rear elevation onto decking and the rear garden and beyond with far reaching countryside views.

Utility Room

With spot lights above, same working surfaces, and same soft close units as the kitchen, Caple stainless steel sink and drainer, chrome mixer tap over, underfloor heating, American design with Indesit 9kg washing machine beneath and Indesit 9kg tumble dryer above in fitted storage units, electric immersion heater, and double glazed doors to the rear elevation.

Bedroom 1

3.75m x 3.37m (12' 4" x 11' 1")
With ceiling light point, power points, oak double doors opening into a built-in wardrobe space and double glazed window to the front elevation.
Door to:

En-Suite

With fitted shower cubicle with panel boarding, extractor and spot lights above, soft close vanity wash hand basin, chrome mixer tap over, splash back tiles and LED feature mirror, low level WC, wooden shelf and double glazed obscured glass window to the front elevation.

Bedroom 2

4.184m x 3.14m (13' 9" x 10' 4")
With power points, ceiling light point, loft access, and double glazed windows to the rear elevation.

Bedroom 3

3.135m x 3.1m (10' 3" x 10' 2")
With ceiling light point, power points, under floor heating, and double glazed windows to the rear elevation with far reaching countryside views,

Bathroom

Comprising; bath with mat black mixer taps over, swivel shower screen with mat black shower and 2 shower heads, panel boarding surround, spot lights, vanity wash hand basin with black mat mixer tap over, LED feature mirror, low level WC, and double glazed obscured glass window to the front elevation.

OUTSIDE

The front garden is southwest facing with a hedge creating the boundary, and the rear garden there is a new boundary fence. The main garden is predominantly laid to lawn with a decked area alongside the property, and from here there is a gravelled area leading to a side gate, which in turn leads to off road parking area and the garage. A tarmacadamed pathway leads to the other side of the property giving access completely around the property and a brick path leads to the front door. Outdoor lighting, and an electric car charging point is an added benefit for an incoming purchaser.

Garage

4.45m x 6.3m (14' 7" x 20' 8")
With a pitched roof, concrete pad, potential for storage above and barn style doors opening into the garage

Hereford

For further details on this property please give our Hereford Office a call
01432 343 477

more details buttonARRANGE A VIEWING

Book a viewing or enquire about this property

Simply fill out the form below or alternatively call us on 01432 343 477

* Mandatory fields