menu icon search icon

Under Offer
Lower Bullingham, Hereford
£210,000

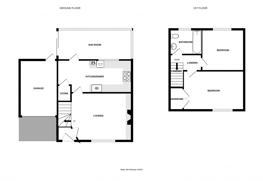
Floorplans For Lower Bullingham, Hereford
EPC For Lower Bullingham, Hereford

DESCRIPTION


This property is a two-bedroom semi-detached house in the Lower Bullingham area. The property benefits from double glazed, central heating, a lounge, a kitchen/diner, a conservatory, two bedrooms, a bathroom, a garden, and a garage.

Local amenities can be found within walking distance, to include hairdressers, co-op, public house, take away, whilst the city can be accessed via walking through King George V playing fields, near to the swimming baths.

OVERVIEW

This property is a two-bedroom semi-detached house in the Lower Bullingham area. The property benefits from double glazed, central heating, a lounge, a kitchen/diner, a conservatory, two bedrooms, a bathroom, a garden, and a garage. Local amenities can be found within walking distance, to include hairdressers, co-op, public house, take away, whilst the city can be accessed via walking through King George V playing fields, near to the swimming baths.

GROUND FLOOR

RECEPTION HALL

The reception hall comprises of: entry via a double glazed door to front elevation; carpet flooring; a central heating radiator; a ceiling light point; power points, and an electric consumer unit.

LOUNGE

4.1m x 3.4m (13' 5" x 11' 2")
The lounge comprises of: carpet flooring; a ceiling light point; a double glazed window to the front elevation; a central heating radiator; a coal-effect gas fire, with fitted storage either side of the fireplace; a television point; power points; wall-mounted storage, and carpeted stairs leading to the first floor landing.

KITCHEN/DINER

4.2m x 2.4m (13' 9" x 7' 10")
The kitchen area comprises of: a fitted kitchen with wall and base units; tiled flooring; a 1 1/2 bowl sink and drainer with a chrome mixer tap over; fitted appliances, an electric double oven, and a four-ring gas burner with a cooker hood over; a wall-mounted central heating Worcester combi boiler; a ceiling light point; an internal double glazed window with view into conservatory.
The dining area comprises of: carpet flooring; a central heating radiator; a ceiling light point; a doorway opening through into the understairs storage cupboard; a single glazed door that leads to the summer room/conservatory.

CONSERVATORY

4m x 2.15m (13' 1" x 7' 1")
The conservatory comprises of: carpet flooring; a wall light; a central heating radiator; double glazed windows to the rear and side elevations with obscure glass, and a double glazed sliding patio door to side elevation, giving access to the rear patio.

FIRST FLOOR

FIRST FLOOR LANDING

The landing comprises of: stairs giving access from lounge; fitted carpet flooring; a central heating radiator; a ceiling light point, and a loft access.

BEDROOM ONE

3.1m x 3.3m (10' 2" x 10' 10")
Bedroom one comprises of: carpet flooring; a ceiling light point; a central heating radiator; a double glazed window to the front elevation; built-in storage for a walk-in wardrobe - hanging rail and shelving, with double doors; a television point, and power points.

BEDROOM TWO

2.15m x 3.2m (7' 1" x 10' 6")
Bedroom two comprises of: carpet flooring; a ceiling light point; power points; a central heating radiator, and a double glazed window to the rear elevation overlooking the garden.

BATHROOM

The bathroom comprises: lino flooring; a ceiling light point; a wall light point; a shaver point; a wash hand basin with chrome hot and cold taps over; a low level WC; a wall-mounted vanity space, with mirror sliding doors; a wall-mounted extractor fan; a central heating radiator; a bath with hot and cold chrome taps over, and a mira mains shower unit, with foldable glass screen; a double glazed window to the rear elevation with obscure glass

OUTSIDE

FRONT OF THE PROPERTY

The front of the property comprises of: dropped curb allowing access onto the tarmac driveway, with space for two+ vehicles, which leads to a single garage, and a low maintenance garden space, mostly laid to lawn, with plants and shrubbery.

Garage

2.7m x 5.1m (8' 10" x 16' 9")
The garage comprises of: a single up and over door, concrete flooring; a ceiling light point; power and lighting; a pitched roof giving potential from storage, and an outdoor tap.

REAR GARDEN

The rear garden comprises of: a large patio seating area off of the rear conservatory; step down to the lower tier of the garden; hedging to the rear; a small timber constructed shed; planted shrubbery; fencing to both sides of the garden, and another storage shed.

Hereford

For further details on this property please give our Hereford Office a call
01432 343 477

more details buttonARRANGE A VIEWING

Book a viewing or enquire about this property

Simply fill out the form below or alternatively call us on 01432 343 477

* Mandatory fields