menu icon search icon

Under Offer
Hampton Park, HEREFORD
£354,950

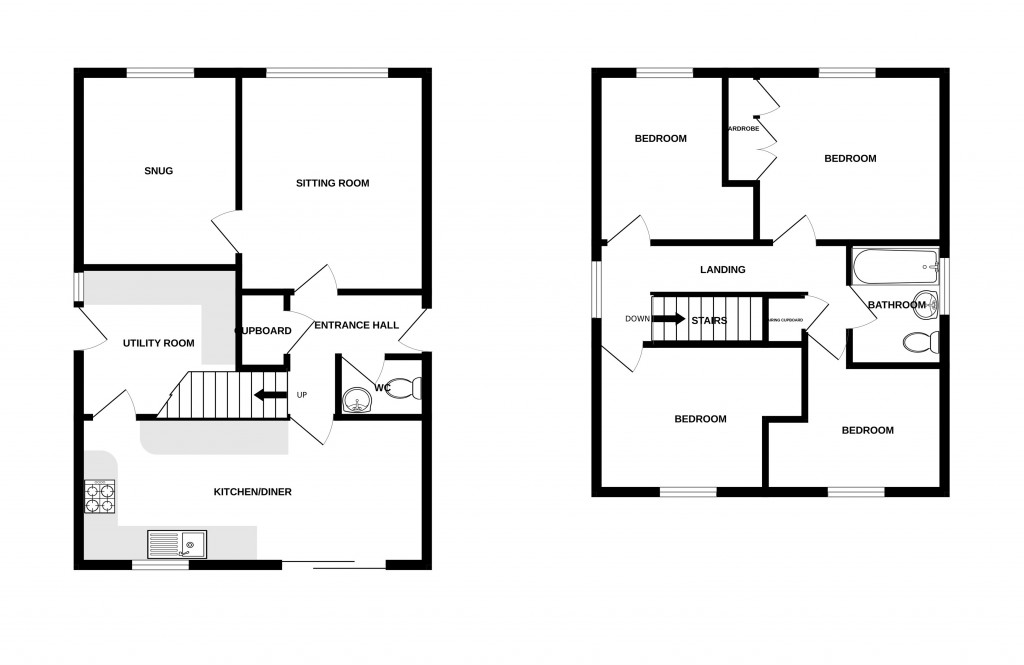
Floorplans For Hampton Park, HEREFORD
EPC For Hampton Park, HEREFORD

DESCRIPTION


Located in this highly sought after residential area of Hampton Dene, a four bedroom detached property which has been further improved by the construction of a family room in what was the garage, and is an ideal family enjoying two substantial reception rooms, kitchen/dining room, four bedrooms, bathroom and gardens. This property is being offered for sale with no onward chain.

There is a host of amenities are close by including a choice of shops, popular schools, church, public house and there is a regular bus service to and from Hereford City. 

OVERVIEW

Located in this highly sought after residential area of Hampton Dene, a four bedroom detached property which has been further improved by the construction of a family room in what was the garage, and is an ideal family enjoying two substantial reception rooms, kitchen/dining room, four bedrooms, bathroom and gardens.
There is a host of amenities are close by including a choice of shops, popular schools, church, public house and there is a regular bus service to and from Hereford City.

In more detail the property comprises:

GROUND FLOOR

Canopy Porch

Double glazed front door lead to:

Reception Hall

With radiator, wood effect flooring, large storage cupboard.
Door to:

Cloakroom

Having low flush W.C., bracket wash hand basin, pull light switch, radiator and window to side.

Living Room

4.79m x 3.22m (15' 9" x 10' 7")
Having coving, power points, radiator, and double glazed window with pleasant outlook onto the cul-de-sac.
Glazed door to:

Family Room

4.38m x 2.69m (14' 4" x 8' 10")
Having double glazed window with outlook to front, radiator and power points.

Kitchen/Dining Room

6.15m x 2.67m (20' 2" x 8' 9") Overall measurement.
Kitchen Area:
The kitchen is beautifully fitted with a range of light modern units comprising 1.5 bowl sink with cupboards below, adjacent laminated working surfaces, drawers and cupboards below, integrated dishwasher, further base unit with drawers and cupboards, full range of eye level wall cupboards, tiled surround to working surfaces, double glazed window with pleasant outlook to the rear garden, and wall mounted Worcester gas central heating boiler serving domestic hot water and central heating.
Dining Area:
Having radiator, and double glazed sliding doors lead out onto patio and rear garden.
Stable door leads to:

Utility

9.6m x 8.6m (31' 6" x 28' 3")
A range of fitted units comprising working surface with cupboards below, space and plumbing for both washing machine and tumble dryer, range of eye level wall cupboards, pantry unit, and door giving access to the outside.

Stairs from the reception hall lead to:

FIRST FLOOR

Landing

Having radiator, large window one side, access to roof space with pull down ladder, airing cupboard.
Door to:

Master Bedroom 1

3.23m x 3.0m (10' 7" x 9' 10")
Having fitted wardrobe unit with hanging rail, shelving, radiator, and with outlook towards the cul-de-sac.

Bedroom 2

2.80m x 3.0m (9' 2" x 9' 10")
With large recessed wardrobe area, hanging rail, shelf above, radiator, power points and window with outlook to the rear.

Bedroom 3

3.0m x 2.90m (9' 10" x 9' 6")
With radiator, power points, and double glazed window with outlook to the front.

Bedroom 4

2.70m x 2.54m (8' 10" x 8' 4")
With radiator, power points, recessed wardrobe and double glazed window with outlook to the rear.

Family Bathroom

Having a white suite comprising panelled bath with Triton shower over, tiled surround, pedestal wash hand basin, low flush WC, ladder style radiator/towel rail, and large window.

OUTSIDE

Garden area

The property is approached from the cul-de-sac, over a herringbone brick driveway providing parking and from here access leads down both sides of the property leading to the rear garden where there is a paved patio area direct off the property. Three steps precede a lawned garden area with flower and shrubbery borders, ornamental trees and beyond here is a further area which is currently being used as a children's play area and there is a small garden shed, silver birch tree, and an outside water tap.

AGENTS NOTE

The current owner is related to a member of staff at Stooke, Hill and Walshe

Hereford

For further details on this property please give our Hereford Office a call
01432 343 477

more details buttonARRANGE A VIEWING

Book a viewing or enquire about this property

Simply fill out the form below or alternatively call us on 01432 343 477

* Mandatory fields