menu icon search icon

Under Offer
Weobley, Hereford
£340,000

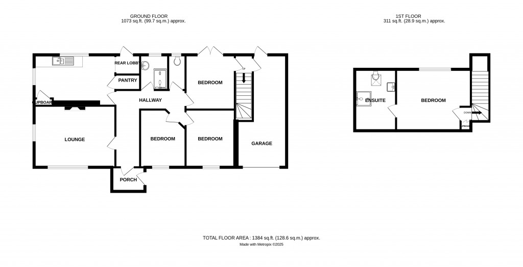
Floorplans For Weobley, Hereford
EPC For Weobley, Hereford

DESCRIPTION


A detached 3/4 bedroom dormer style property, offering an incoming purchaser the opportunity to further modernise, or extend subject to the relevant planning/building regulations. Comprising; ground floor shower room, kitchen, down stairs WC, 3 bedrooms, first floor bedroom with en-suite, garage, gardens and off road parking. Situated on the northwest edge with semi rural views over open farmland and being sold with no onward chain.

Situated on the fringe of one of Herefordshire’s most popular and sought after black and white villages, approximately 11 miles northwest of Hereford City, Weobley village is a well serviced community for amenities having doctors and dentist surgeries, secondary and primary schools, public houses, restaurants and takeaway, one stop shop, post office, coffee house, village hall, churches, beautiful walks and a regular bus service.

A FULL VIRTUAL TOUR IS AVAILABLE VIA OUR WEBSITE AND ON OUR YOUTUBE CHANNEL

OVERVIEW

A detached 3/4 bedroom dormer style property, offering an incoming purchaser the opportunity to further modernise, or extend subject to the relevant planning/building regulations. Comprising; ground floor shower room, kitchen, down stairs WC, 3 bedrooms, first floor bedroom with en-suite, garage, gardens and off road parking. Situated on the northwest edge with semi rural views over open farmland and being sold with no onward chain.
Situated on the fringe of one of Herefordshire’s most popular and sought after black and white villages, approximately 11 miles northwest of Hereford City, Weobley village is a well serviced community for amenities having doctors and dentist surgeries, secondary and primary schools, public houses, restaurants and takeaway, one stop shop, post office, coffee house, village hall, churches, beautiful walks and a regular bus service.

In more detail the property comprises:
Front door leads to:

Entrance Porch

Double glazed door to:

Entrance Hall

With radiator, and pine flooring.
Door to:

Sitting Room

3.62m x 4.53m (11' 11" x 14' 10")
With radiator, and recessed fireplace with fitted wood burning stove, stone hearth.

Kitchen

4.55m x 2.81m (14' 11" x 9' 3")
Fitted with a range of units comprising single drainer sink with mixer tap, range of working surfaces either side, drawers and cupboards below, space and plumbing for washing machine, large radiator, fitted storage cupboards/linen cupboard with radiator, additional recessed storage units ideal for china, and pantry unit with shelving.
Opening through to:

Rear Entrance Porch

With quarry tiled floor and stable door giving access to the outside.

Ground Floor Shower Room

With corner shower, electric shower, shower board surround, pedestal wash hand basin, radiator, shaver point, and window.

Separate WC

With low flush system, and radiator.

Bedroom 1

3.0m x 3.83m (9' 10" x 12' 7")
With radiator, power points, coving and window with outlook to the front elevation.

Ground Floor Bedroom 2

2.67m x 3m (8' 9" x 9' 10")
With radiator, power points, and window to front.

Bedroom 3/Second Reception Area

3.21m x 2.91m (10' 6" x 9' 7")
With pine flooring, radiator, french style double doors opening onto patio and garden.
Door to:

Rear Entrance Lobby

With door giving access to garage and boiler.

Stairs lead to:

FIRST FLOOR

Landing Area

With eaves storage to one side.
Door to:

Bedroom 4

4.41m x 3.60m (14' 6" x 11' 10")
With power points, radiator and dormer style window with outlook towards open countryside.
Door to:

En Suite Shower Room

2.40m x 2.45m (7' 10" x 8' 0")
With central shower cubicle with Triton electric shower, sky light, low flush WC, radiator, access to eaves storage, and extractor canopy.

OUTSIDE

The property is approached from Kington Road, via a large timber gate and a personal gate to one side, which in turn leads onto a large tarmacadamed driveway providing car parking for 3 or 4 cars. Then the driveway leads up to the garage, and the front garden is laid to lawn with flower and shrubbery borders, and from here there is access around both sides of the property where there is a bunded oil tank. Leading on round to the rear, which has views over open farmland, there is a large patio area being the width of the property and from here there are steps leading up on to a further seating area, and lawned area, where this rear garden has a mixture of mature shrubbery hedging and timber slatted fencing.

GARAGE

2.89m x 7.11m (9' 6" x 23' 4")
With concrete floor, vaulted ceiling, power and light, personal door giving access to the outside and boiler area at one end with freestanding Worcester oil fired central heating boiler serving domestic hot water and central heating.

Hereford

For further details on this property please give our Hereford Office a call
01432 343 477

more details buttonARRANGE A VIEWING

Book a viewing or enquire about this property

Simply fill out the form below or alternatively call us on 01432 343 477

* Mandatory fields